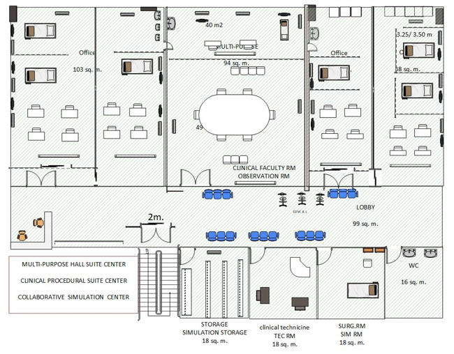
فضای فیزیکی مرکز
مساحت مرکز حدود 700 متر مربع است که ظرفیت 4 کاربری درموقعیت های مختلف با قابلیت انعطاف پذیری و چند موضوعی را خواهد داشت.
فضای فیزیکی مرکز با قابلیت جابجایی در تجهیزات پزشکی، میزکار، امکانات هتلینگ بیمارستانی، تغییر چیدمان و ظرفیت تغییر پذیری در زمان محدود را دارا می باشد که میتوان کاربری متفاوتی چون فضای آموزشی ، کلاس درس، فضای آموزشی کارگاهی، فضای آموزشی دوره های حرفه ای – بین حرفه ای و همچنین برگزاری آزمون اسکی و آزمون صلاحیت بالینی را مهیا نماید.


